产品描述

| 全电动托盘堆垛车(E系列)参数Technical Data | |||||||
| 特征Characteristics | |||||||
| 1.01 | 型号 | Model | CL1516E | CL1526E | CL1532E | CL1536E | |
| 1.02 | 驱动方式 | Power unit | 电动(Electric) | ||||
| 1.03 | 操作方式 | Operation | 站驾式(Standing on) | ||||
| 1.04 | 额定载荷能力 | Rated traction weight | Q(t) | 1.5 | |||
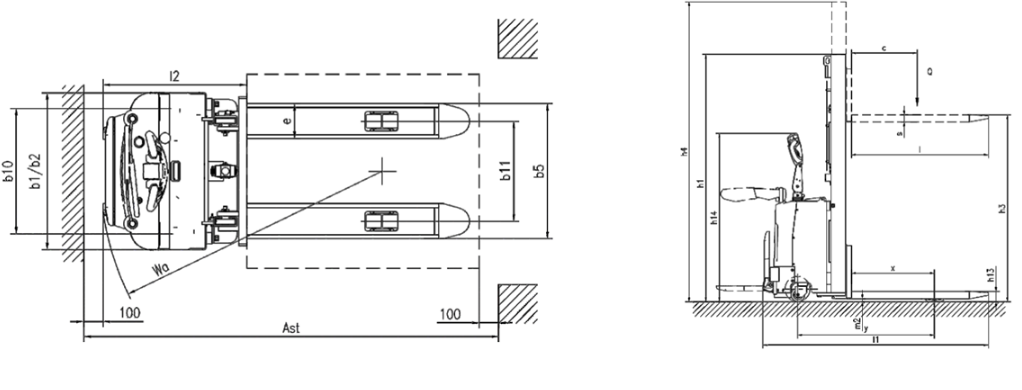
| 1.05 | 载荷中心距 | Load centre | c(mm) | 600 | |||
| 1.06 | 前悬距 | Axle centre to fork face | x(mm) | 695 | |||
| 1.07 | 轴距 | Wheel base | Y(mm | 1148 | |||
| 1.08 | 自重(含电瓶) | Service weight with battery | kg | 650 | 720 | 740 | 760 |
| 轮子、底盘Wheels/Tyres | |||||||
| 2.01 | 轮胎类型 | Wheels type | 聚氨酯(PU) | ||||
| 2.02 | 驱动轮尺寸 | Driving wheel size | φxw(mm) | φ210×70 | |||
| 2.03 | 承截轮尺寸 | Bearing wheel size | φxw(mm) | φ80×70 | |||
| 2.04 | 平衡轮尺寸 | additional wheels (dimensions) | φxw(mm) | φ115×55 | |||
| 2.05 | 驱动轮,平衡轮承载轮数量(x=驱动轮) | Wheels,number front/rear (xs driven) | 1,4/2 | ||||
| 2.06 | 轮距,驱动端 | Track width | b10(mm) | 646 | |||
| 2.07 | 轮距,承载端 | Track width | b11(mm) | 390/515 | |||
| 尺寸Dimensions | |||||||
| 3.01 | 最低门架高度 | Height of mast,lowered | h1(mm) | 2077 | 1877 | 2127 | 2327 |
| 3.02 | 提升高度 | Lift | h3(mm) | 1600 | 2600 | 3200 | 3600 |
| 3.03 | 门架最大高度 | Height of mast,extended | h4(mm) | 2077 | 3137 | 3687 | 4087 |
| 3.04 | 操作位置手柄杆最小/最大高 | Overall height(With handle) | h14(mm) | 1040/1415 | |||
| 3.05 | 货叉最低高度 | Lowered height | h13(mm) | 86 | |||
| 3.06 | 整车长度 | Overall length | 11(mm) | 1890 | |||


电话: 400-996-7021





