产品描述

| 步行式平衡重式叉车参数Technical Data | ||||||||
| 特征Characteristics | ||||||||
| 1.01 | 型号 | Model | E1016J | E1020J | E1025J | E1030J | E1035J | |
| 1.02 | 驱动方式 | Power unit | 电动Electric | |||||
| 1.03 | 操作方式 | Operation | 步行式Pedestrian propelled | |||||
| 1.04 | 额定载荷能力 | Rated traction weight | Q(kg) | 1000 | ||||
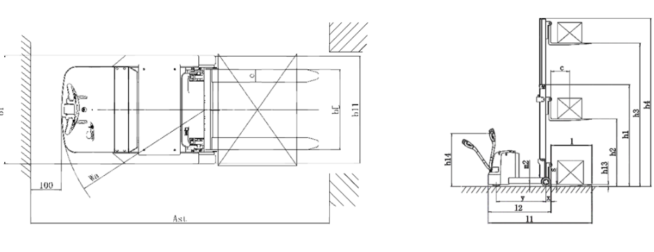
| 1.05 | 载荷中心 | Load centre | c(mm | 400 | ||||
| 1.06 | 前悬距 | Axle centre to fork face | x(mm) | 101 | ||||
| 1.07 | 轴距 | Wheel base | y (mm) | 1000 | ||||
| 1.08 | 自重(含电瓶) | Service weight with battery | kg | 1365 | 1410 | 1420 | 1430 | 1440 |
| 轮子、底盘Wheels/Tyres | ||||||||
| 2.01 | 轮胎类型 | Wheels type | 聚氨酯(PU) | |||||
| 2.02 | 驱动轮尺寸 | Driving wheel size | φxw(mm) | φ210×70 | ||||
| 2.03 | 承载轮尺寸 | Bearing wheel size | φxw(mm) | φ178×73 | ||||
| 2.04 | 驱动轮,平衡轮/承载轮数量(x=驱动轮) | Wheels,number front/rear (x =driven) | 1x/2 | |||||
| 2.05 | 轮距,驱动端 | Track width | b10(mm) | 0 | ||||
| 2.06 | 轮距,承载端 | Track width | b11(mm) | 803 | ||||
| 尺寸Dimensions | ||||||||
| 3.01 | 最低门架高度 | Height of mast,lowered | h1(mm) | 2072 | 1553 | 1803 | 2053 | 2303 |
| 3.02 | 自由提升高度 | Free lift | h2(mm) | 0 | ||||
| 3.03 | 提升高度 | Lift | h3(mm) | 1600 | 2000 | 2500 | 3000 | 3500 |
| 3.04 | 门架最大高度 | Height of mast,extended | h4(mm) | 2072 | 2533 | 3033 | 3533 | 4033 |
| 3.05 | 操作位置手柄杆最小/最大高度 | Overall height(With handle | h14(mm) | 730/1165 | ||||
| 3.06 | 货叉最低高度 | lowered hength | h13(mm) | 40 | ||||
| 3.07 | 整车长度 | Overall length | l1(mm) | 2086 | ||||
| 3.08 | 车体长度 | Length to fork face | l2(mm) | 1236 | ||||
| 3.09 | 整车宽度 | Overall width | b1/b2 (mm) | 878 | ||||
| 3.10 | 货叉尺寸 | Fork dimensions | s/e/l (mm) | 35/100/820 | ||||
| 3.11 | 货叉外宽 | Width of forks | b5 (mm) | 220-640 | ||||
| 3.12 | 轴距中心处离地间隙 | Min.Ground clearance | m2 (mm) | 60 | ||||
| 3.13 | 通道宽度:1000x1200托盘(1200跨货叉放置) | Aisle width with pallet 1000 x 1200 across forks | Ast (mm) | 2635 | ||||
| 3.14 | 通道宽度:800x1200托盘(1200沿货叉放置) | Aisle width with pallet 800 x 1200 along forks | Ast (mm) | 2742 | ||||
| 3.15 | 转弯半径 | Min.Tuming radius | Wa(mm) | 1175 | ||||
| 性能Performance | ||||||||
| 4.01 | 行走速度,满载/空载 | Travel speed,laden/unladen | (km/h) | 4.0/4.2 | ||||
| 4.02 | 提升速度,满载/空载 | Lifting speed,with/without load | (mm/s) | 95/160 | ||||
| 4.03 | 下降速度,满载/空载 | Lowering speed,with/without load | (mm/s) | 125/98 | ||||
| 4.04 | 最大爬坡度,满载/空载 | Maximum climbing ability,with/without load | (%) | 5/10 | ||||
| 4.05 | 制动类型 | Service brake | 电磁制动(Electromagnetic Brake) | |||||
| 电 机 D r i v e | ||||||||
| 5.01 | 驱动电机功率 | Drive motor,60 minute rating | (kW) | 0.75 | ||||
| 5.02 | 起升电机功率 | Lift motor rating at S3 15% | (kW) | 2.2 | ||||
| 5.03 | 蓄电池电压/容量 | Battery voltage/rated capacity | (V/Ah) | 2×12/100 | ||||
| 5.04 | 电池重量(±5%) | Battery weight (±5%) | (kg) | 2×27 | ||||
| 其 它 O th e r | ||||||||
| 6.01 | 驱动控制类型 | Type of drive contro | 直流速度控制(DC) | |||||
| 6.02 | 噪音水平 | Noise level at operator 's ear | (dB(A)) | ≤75 | ||||
| 6.03 | 转向类型 | Type of steering | 机械转向(Mechanical Steering) | |||||


电话: 400-996-7021






