产品描述

| Q15GB前移式叉车参数表 | |||||
| 代号 | 公制 | ||||
| 特征 distinguishing mark | |||||
| 1.1 | 品牌 | Manufacturer | 加力 | ||
| 1.2 | 型号 | Model designation | Q15GB | ||
| 1.3 | 动力形式 | Drive unit | 电动 | ||
| 1.4 | 操作类型 | Operator type | 站驾式 | ||
| 1.5 | 载荷 | rated capacity | Q | kg | 1500 |
| 1.6 | 载荷中心距 | Load center distance | c | mm | 500 |
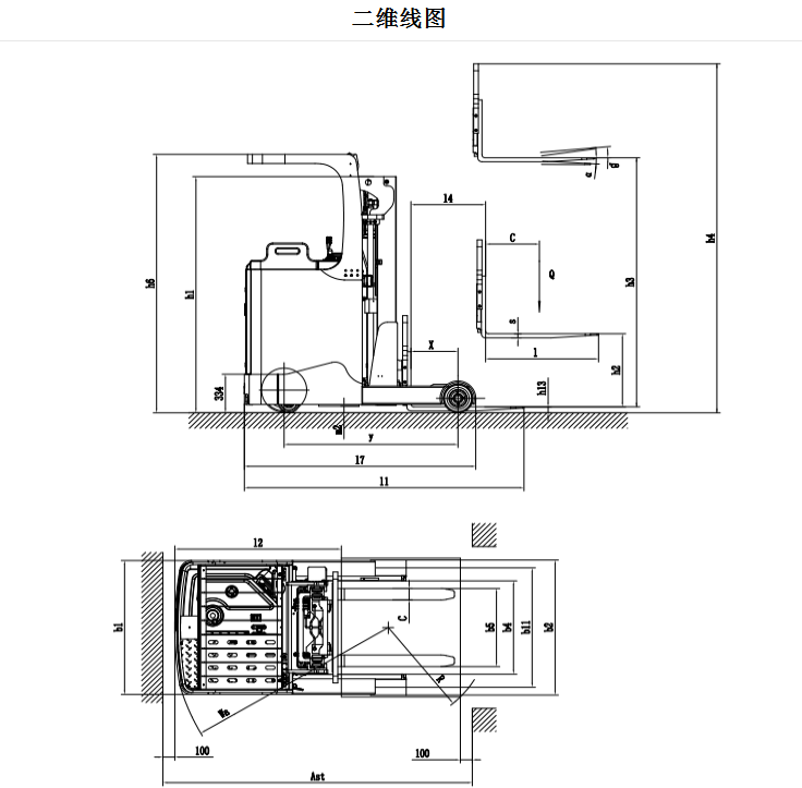
| 1.7 | 前悬距 | Axle centre to fork face | x | mm | 二级门架395 三级门架314 |
| 1.8 | 轴距 | Wheelbase | y | mm | 1460 |
| 重量Weight | |||||
| 2.1 | 自重(含电瓶) | Service weight (include battery) | kg | 3660 | |
| 2.2 | 桥负荷,货叉前移 空载驱动端/承载端 | Axle loading ,Pallet fork forward,unladen front/rear | kg | 1663/1997 | |
| 2.3 | 桥负荷,货叉后移 空载驱动端/承载端 | Axle loading ,Pallet fork back,unladen front/rear | kg | 2413/1517 | |
| 2.4 | 桥负荷,货叉前移 满载驱动端/承载端 | Axle loading ,Pallet fork forward,laden front/rear | kg | 860/4300 | |
| 2.5 | 桥负荷,货叉后移 满载驱动端/承载端 | Axle loading ,Pallet fork back,laden front/rear | kg | 2007/3153 | |
| 轮胎 ,底盘Types,Chassis | |||||
| 3.1 | 轮胎类型,驱动轮/承载轮 | Tyre type driving wheels/loading wheels | 聚氨酯 | ||
| 3.2 | 驱动轮尺寸(直径×宽度) | Tyre size, driving wheels(diameter×width) | mm | Φ343×130 | |
| 3.3 | 承载轮尺寸(直径×宽度) | Tyre size, loading wheels(diameter×width) | mm | Φ250×120 | |
| 3.4 | 平衡轮尺寸(直径×宽度) | Tyre size, caster wheels(diameter×width) | mm | Φ178×73 | |
| 3.5 | 驱动轮,平衡轮/承载轮数量(x=驱动轮) | Wheels, number driving,caster/loading (x=drive wheels) | mm | 1x,2/2 | |
| 3.6 | 前轮距,驱动端 | Track width, front,driving side | b10 | mm | 755 |
| 3.7 | 后轮距,承载端 | Track width,rear,loading side | b11 | mm | 1038 |
| 尺寸 Dimensions | |||||
| 4.1 | 门架/货叉倾斜 前倾/后倾 | Mast/fork tilt Forward/backward tilt | a/b | (°) | 3/5 |
| 4.2 | 最低门架高度 | Height of mast, lowered | h1 | mm | 3065 |
| 4.3 | 自由提升高度 | Free lift | h2 | mm | 2180 |
| 4.4 | 标配最大起升高度 | Lift height | h3 | mm | 7200 |
| 4.5 | 货叉下降后叉面高度 | Lowered height | h13 | mm | 35 |
| 4.6 | 整车长度 | Overall length | l1 | mm | 2431 |
| 4.7 | 到货叉垂直面的长度 | Length to face of forks | l2 | mm | 1400 |
| 4.8 | 整体宽度 | Overall width | b1/ b2 | mm | 1158/1168 |
| 4.9 | 货叉尺寸 | Fork dimensions | s/ e/ l | mm | 35/100/950 |
| 4.10 | 货叉外宽 | Distance between fork-arms | b5 | mm | 300-600 |
| 4.11 | 轴距中心处离地间隙 | Ground clearance, center of wheelbase | m2 | mm | 56 |
| 4.12 | 前移距离 | Reach distance | l4 | mm | 570 |
| 4.13 | 托盘为 1200宽 × 1000长的通道宽度 | Aisle width for pallets 1000 × 1200 crossways | Ast | mm | 2900 |
| 4.14 | 托盘为800宽 × 1200长的通道宽度 | Aisle width for pallets 800 × 1200 lengthways | Ast | mm | 2950 |
| 4.15 | 最小转弯半径 | Turning radius | Wa | mm | 1830 |
| 性能参数 Performance data | |||||
| 5.1 | 行走速度,满载/空载 | Travel speed, laden/ unladen | km/h | 8.5/9 | |
| 5.2 | 起升速度,满载/空载 | Lifting speed, laden/ unladen | m/ s | 0.18/0.33 | |
| 5.3 | 下降速度,满载/空载 | Lowering speed, laden/ unladen | m/ s | 0.22/0.24 | |
| 5.4 | 前移速度,满载/空载 | Reach speed,laden/unladen | m/ s | 0.12/0.1 | |
| 5.5 | 最大爬坡度,满载/空载 | Max. gradeability, laden/unladen | % | 10/15 | |
| 5.6 | 加速时间,满载/空载 | Acceleration time with/without load | s | - | |
| 5.7 | 制动类型 | Service brake type | 电磁制动 | ||
| 电机,动力源 Electric-engine | |||||
| 6.1 | 驱动电机额定功率 S2 60分钟 | Drive motor rating S2 60 min | kW | 6.0 | |
| 6.2 | 起升电机额定功率 S3 15% | Lift motor rating at S3 15% | kW | 7.7 | |
| 6.3 | 电瓶允许最大尺寸 | The maximum allowed size battery | mm | 1065x355x740 | |
| 6.4 | 电瓶电压/标称容量 K5 | Battery voltage/nominal capacity K5 | 48/420 | ||
| 6.5 | 电瓶重量 | Battery weight | kg | 720 | |
| 6.6 | 能耗 ,根据VDI循环 | Energy consumption acc. to VDI cycle | kW/h | - | |
| 其他数据 Addition data | |||||
| 8.1 | 驱动控制类型 | Type of drive control | 交流速度控制 | ||
| 8.2 | 转向类型 | Steering type | 电转 | ||
| 8.3 | 噪音等级 | Sound pressure level at the driver’s ear | dB(A) | ≤70 | |



电话: 400-996-7021








